34
$775,000 Sale
Listed 18 hours ago
351 PEEL STREET
· 2
· 2.0
· 2
· 700 - 1100
Key Facts
Key facts for 351 PEEL STREET
Property Type
House, House
Parking
Garage: No, 2 parking
MLS #
W12449410
Size
700 - 1100 sqft
Basement
Finished, N/A (Finished)
Listed on
-
Lot size
-
Tax
-
Days on Market
-
Year Built
-
Maintenance Fee
-
Description
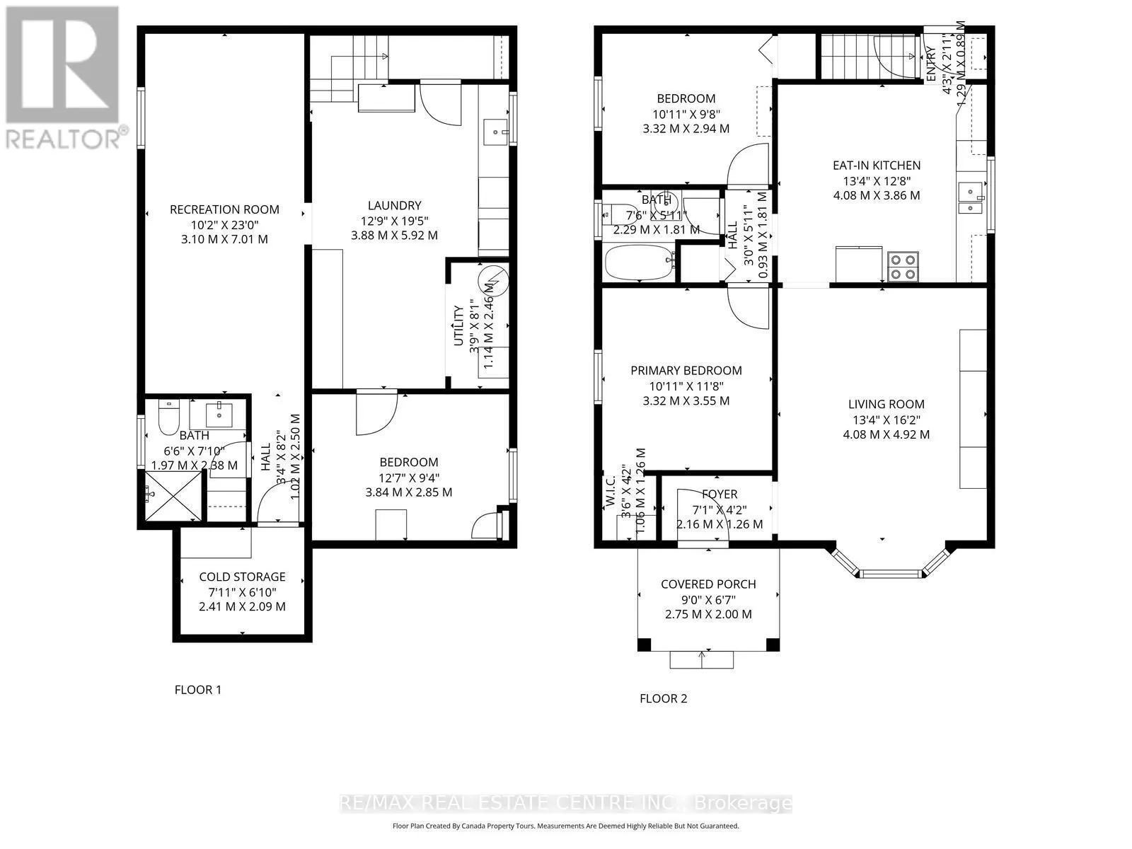
Must-See Bungalow with Modern Updates! Welcome to this beautifully updated 2-bedroom, 2-bathroom bungalow that offers a smart use of space and a warm, inviting atmosphere. Step into the bright and spacious living room, where a large bay window fills the space with natural light perfect for relaxing ...or entertaining.Enjoy cooking in the updated eat-in kitchen, complete with newer stainless steel appliances. Both main-floor bedrooms are conveniently located near the full bathroom. Downstairs, the finished basement offers incredible flexibility with a large recreation room, workout space, bathroom with walk-in shower, and a private office that could easily serve as a 3rd bedroom. Updates in the past 5 years include:* Windows & doors* Siding & eaves* Washer & dryer* Fridge & stove* Water softener & water heater* Furnace & heat pump* Front porch & backyard fire pit. Step outside to a large, private yard featuring a deck ideal for morning coffee or evening gatherings around the fire pit. This home blends comfort, functionality, and style all in a peaceful setting. No condo fees, no rental items, and just a short walk to the GO Station, restaurants, shopping, and schools. (id:10452)
Similar Properties (No results)
Listing courtesy of: RE/MAX REAL ESTATE CENTRE INC.
This REALTOR.ca listing content is owned and licensed by REALTOR® members of The Canadian Real Estate Association.